港珠澳大橋島隧工程是目前世界范圍內綜合難度和規模最大的隧道工程,該工程于2011年1月正式開工,西人工島長度為625m,最寬處190m,面積9.7萬平方米。外包防水設計為噴涂聚脲防水涂料,該材料特點:附著力好、高強度、高彈性,連續無接縫,而且具有良好的耐磨性、耐化學腐蝕性和耐老化性,使用噴涂聚脲防水涂料作防腐、防水層是提高橋梁結構耐久性的重要手段。
一、島隧工程外包防水范圍及構造層次
噴涂聚脲防水涂料范圍為所有+5.5m標高以下的結構(不包括+5.5m板頂面)迎水面,包括外側墻表面、+4m標高板頂面等。詳見圖2、圖3。

二、施工工藝
施工流程:基層處理→基層修補→底涂施工→聚脲噴涂→特殊部位處理→聚脲涂層修補
操作要點
1.基層處理
使用角磨機將所有需要噴涂的基面打磨并除塵,徹底去除表面的浮漿、起皮、疏松和雜質等結合薄弱的物質,使基層獲得合適的粗糙度,增強噴涂聚脲涂層與基層的粘結強度。對于局部油污,可用丙酮或酒精清洗。
2.基層修補
根據現場實際情況,混凝土基面打磨后針孔全面分布較多,無法采用局部修補的辦法,只能采用全面批刮修補膩子封孔來滿足聚脲噴涂質量要求需要,全面批刮修補膩子目的是封填針孔及找平。
1) 采用環氧類聚脲配套修補膩子,按廠家設定配比(配比為:A:B:石英砂和水泥=4:1:適量的石英砂和水泥) 攪拌均勻,根據基面實際缺陷程度大小,加入適量的石英砂和水泥做填料對混凝土基面封填刮涂,刮涂涂層時不宜流掛及過厚,只需把針孔封填嚴實就好。如全面批刮修補膩子后仍有大量針孔,需重復批刮或局部修補。
2) 基面基本達到要求時,修補膩子完全固化后,使用角磨機輕度打磨修補后的基面去除浮漿及灰塵。
3) 輕度打磨后發現基面仍有較明顯的針孔,仍需局部采用修補膩子修補針孔,至基面達到噴涂聚脲要求(基面最終只允許有少許細小針眼,但不允許有大的孔洞及缺陷)
4) 根據現場氣溫等氣候條件,最后一次修補膩子完全固化后(一般為24小時后),可進行配套底涂施工。
3.底涂施工
底涂材料采用高固含聚氨酯配套底涂,按廠家設定配比(配比為:A:B=3.5:1) 攪拌均勻滾涂或涂刷,大面積施工采用輥涂或機械噴涂工藝,邊角溝槽輔以涂刷。要求涂布均勻,無漏涂、無堆積。現場作業時,應做好合格基層的保護,防止二次污染。底涂徹底干后可以噴涂聚脲(一般為6-24小時)。
4. 噴涂聚脲彈性體防水涂料
1) 最后一次檢查修補膩子或底涂后的基面是否符合噴涂聚脲要求,如不符合繼續修補,如符合時做好材料及設備準備,待噴。
2) 現場施工操作人員作好勞動安全保護。噴涂作業工人配備必要的勞保用品。包括工作服、護目鏡、防護面具、口罩、手套、安全鞋、急救箱等。
3) 正式開始噴涂前,先用塑料布將噴涂區域以外的區域進行遮擋,并按設計要求預先做好工程細部構造處理,再進行大面積噴涂,施工現場應保持良好通風。
4) 聚脲涂料由甲組(A組)和乙組(B組)兩種組份組成。聚脲防水涂料噴涂施工前,檢查A、B兩組份物料是否正常,使用時將B料用氣動攪拌器進行充分攪拌,并使之均勻,施工過程中保持連續攪拌。噴涂設備由專業人員管理和操作,根據材料特性、施工現場條件等適時調整設備各項參數,確保涂層噴涂質量。嚴禁現場向涂料中添加任何稀釋劑,嚴禁混淆A、B組分進料系統。
5) 噴涂作業時,操作員手持噴槍噴涂施工,噴槍宜垂直于待噴基層,距離適中,移動速度均勻;噴涂順序為先難后易、先上后下,縱橫交叉噴涂至設計要求的厚度,應連續作業,一般人工噴涂2遍能達到1.5厚。噴涂作業時,如發現異常情況,應立即停止作業,檢查并排除故障后方可繼續施工。
6) 桶內涂料每次應盡量用完,如噴涂作業結束后桶內尚有余料,且下次噴涂間隔超過24h時,應向A料桶內充氮氣或干燥空氣密封保存。
5.特殊部位處理
1) 變形縫處防水
變形縫處設置了外貼式止水帶,將止水帶兩側混凝土打磨,使止水帶與混凝土表面相平,環氧砂漿填充縫隙并打磨平整,人工清理止水帶上浮漿、油污等,必要時使用丙酮或酒精等有機溶劑沖洗,使止水帶表面干凈無污染。變形縫止水帶l00cm寬范圍聚脲涂層需加厚至2mm在噴涂到此部位時,比大面積多噴一遍從而達到設計厚度。

(圖:變形縫處外貼式止水帶聚脲涂層構造)
2) 陰陽角處聚脲涂層構造
陰角處平、立面各30cm范圍內聚脲涂層厚度為2mm,陽角處平、立面各20cm范圍內聚脲涂層厚度為2mm。

(圖:陰陽角處聚脲圖層構造)
3) 收頭處防水
頂部收頭至+5.5板頂邊緣(非變形縫處涂層不需加厚),需設置低模量聚氨酯密封膠封邊;底部收頭需至底板倒角下口。

(圖:變形縫收頭處聚脲涂層構造)

(圖:底部收頭處聚脲圖層構造)
4) 變形縫頂部及底部都需在收頭處設置低模量聚氨酯密封膠封邊,底部收頭只需至底板倒角上口。變形縫底部收頭處聚脲涂層構造見圖。

(圖:變形縫收頭處聚脲涂層構造)
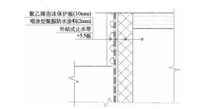
5) 側墻頂部回填土面以上,+5.5m標高以下部分,聚脲涂層需加厚至2mm,并需設置聚乙烯泡沫保護板,厚度l0mm。
6) 搭接施工
噴涂聚脲防水涂層兩次施工間隔在6小時以上,需要搭接連成一體的部位,在第一次施工時應預留出15~20cm的操作面同后續防水層進行可靠的搭接。施工后續防水層前,應對已施工的防水層邊緣15cm寬度范圍內的涂層表面進行清潔處理,保證原有防水層表面清潔、干燥、無油污及其他污染物。采用高固含聚氨酯搭接底涂,對原有防水層表面15cm范圍內做預處理,在4~24小時之內噴涂后續防水層,后續防水層與原有防水層搭接寬度至少l0cm。
6. 聚脲涂層修補
當噴涂聚脲完成一個面的施工時,必須及時檢查,如發現有針孔時及時采用少量手刮聚脲材料按比例用手工快速調制封堵針孔。
如果在噴涂過程中出現小于250cm2的鼓包,修補涂層時,先剔除鼓包,清除損傷及粘結不牢的涂層,并將缺陷部位邊緣100mm范圍內的涂層及基層打毛清理干凈,涂高固含聚氨酯配套底涂。底涂固化后,采用少量手刮聚脲材料按比例用手工修補至設計厚度。
對于大于250cm的鼓包及破損處,應剔除至混凝土基層,重新刮涂基層處理劑、按設計要求厚度噴涂聚脲涂層,噴涂聚脲涂層之前應采用高固含聚氨酯配套底涂對原有防水層表面進行處理。 防止重新噴涂的涂層與原聚脲涂層界面粘結不牢而產生分層。
深圳珠海惠州中山噴涂聚脲防水涂料 聚脲防腐涂料 噴涂聚脲彈性體防水涂料 隧道地鐵聚脲防水防腐 鋼結構聚脲防水防腐





